Featured Listing
Продажа
Продажа
Продажа
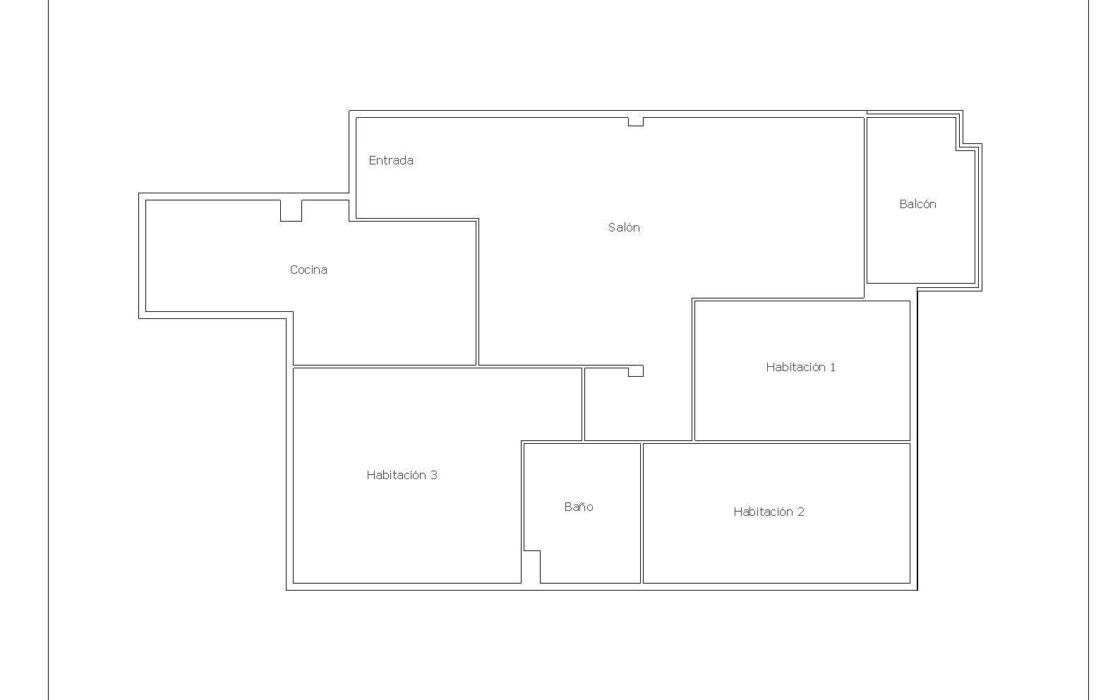
4-комнатная квартира в Алькорконе с террасой 72 кв.м
Связаться с менеджером
Связаться с менеджером
- ID объекта 42208
- Комнаты 4
- Спальни 3
- Ванные комнаты 1
- Год постройки 1970
- Жилая площадь 72 m2
- Этаж 4
- Балкон Да
- Терраса Да
- Лифт Да
- Furniture Да
- Conditioning Да
Подробности
-
m2 . 72
-
Спальни . 3
-
Ванная комната . 1
-
Posted . 3 месяца ago
Описание недвижимости
Предлагаем вашему вниманию светлую и уютную квартиру, расположенную в центре Алькоркона. Эта жилплощадь включает в себя прихожую, просторную гостиную с выходом на застекленную террасу, три спальни, отдельную кухню и ванную комнату.
В квартире есть:
- Три просторные спальни, комфортные для проживания семьи;
- Полностью оборудованная ванная комната с душевой кабиной;
- Завораживающая застекленная терраса для отдыха;
- Расположение на четвертом этаже в здании с лифтом;
- Современный ремонт и продажа с мебелью.
Локация квартиры обеспечивает удобный доступ к разнообразной инфраструктуре: супермаркетам, учебным заведениям, медицинским центрам и зеленым зонам. Станция метро и электропоездов расположены всего в 5 минутах пешком, что позволяет добраться до центра Мадрида всего за 15 минут.
Объект готов к немедленному заселению. Для получения подробной информации и организации просмотра, пожалуйста, свяжитесь с нашим менеджером.
Что находиться рядом?
Вход в метро
Acceso Calle Mótoles - Bailén
284 м • 4 мин пешком • 1 мин на авто
Станция метро
Alcorcón Central
324 м • 5 мин пешком • 1 мин на авто
Вход в метро
Вход в метро
329 м • 5 мин пешком • 1 мин на авто
Примечание: места подбираются в радиусе ~2 км (пляж — до ~2 км). Расстояние считается по прямой и может отличаться от маршрута.
Метро
Вход в метро
Acceso Calle Mótoles - Bailén
284 м • 4 мин пешком • 1 мин на авто
Станция метро
Alcorcón Central
324 м • 5 мин пешком • 1 мин на авто
Вход в метро
Вход в метро
329 м • 5 мин пешком • 1 мин на авто
Вход в метро
Acceso Calle Berín
348 м • 5 мин пешком • 1 мин на авто
Станция метро
Parque Lisboa
1,1 км • 15 мин пешком • 4 мин на авто
Станция метро
Parque Oeste
1,4 км • 20 мин пешком • 6 мин на авто
Вход в метро
Olimpico Fernandez Ochoa
1,7 км • 24 мин пешком • 7 мин на авто
Станция метро
Puerta del Sur
1,8 км • 25 мин пешком • 7 мин на авто
Вход в метро
Avenida de la Libertad, pares
1,8 км • 26 мин пешком • 7 мин на авто
Вход в метро
Avenida de la Libertad, impares
1,8 км • 26 мин пешком • 7 мин на авто
Остановки транспорта
Остановка транспорта
Av. Móstoles - Centro de Salud
153 м • 2 мин пешком • 1 мин на авто
Остановка транспорта
Cáceres - Torrijos
163 м • 2 мин пешком • 1 мин на авто
Остановка транспорта
Berlín - Hospital Fundación Alcorcón
225 м • 3 мин пешком • 1 мин на авто
Остановка транспорта
Cáceres - Iglesia
302 м • 4 мин пешком • 1 мин на авто
Остановка транспорта
Av. Móstoles - Est. Alcorcón Central
323 м • 5 мин пешком • 1 мин на авто
Остановка транспорта
Budapest - Hospital Fundación Alcorcón
324 м • 5 мин пешком • 1 мин на авто
Остановка транспорта
Cáceres - Pza. San Pedro Bautista
334 м • 5 мин пешком • 1 мин на авто
Остановка транспорта
Robles - Casa de la Cultura
374 м • 5 мин пешком • 1 мин на авто
Остановка транспорта
Robles - Colegio
388 м • 6 мин пешком • 2 мин на авто
Остановка транспорта
Berlín - Est. Alcorcón Central
389 м • 6 мин пешком • 2 мин на авто
Остановка транспорта
Cantos - Zamora
425 м • 6 мин пешком • 2 мин на авто
Остановка транспорта
Pº Castilla - San Isidro
462 м • 7 мин пешком • 2 мин на авто
Школы
Школа
Centro Privado de Educación Infantil, Primaria y Secundaria Nuestra Señora de los Remedios
127 м • 2 мин пешком • 1 мин на авто
Школа
Colegio de Educación Infantil y Primaria Jesús Varela
310 м • 4 мин пешком • 1 мин на авто
Детский сад
Escuela Infantil Privada Pompitas
316 м • 5 мин пешком • 1 мин на авто
Школа
Aula Hospitalaria Fundación Alcorcón
413 м • 6 мин пешком • 2 мин на авто
Школа
Centro Privado de Educación Infantil, Primaria y Secundaria Centro Educativo Villa de Alcorcón
506 м • 7 мин пешком • 2 мин на авто
Детский сад
Escuela Infantil Privada Los Mofletes
543 м • 8 мин пешком • 2 мин на авто
Детский сад
Trébol
594 м • 8 мин пешком • 2 мин на авто
Детский сад
Dulce Regazo
749 м • 11 мин пешком • 3 мин на авто
Детский сад
Escuela Infantil Privada Los Pinos Ayelem
885 м • 13 мин пешком • 4 мин на авто
Школа
Colegio de Educación Infantil y Primaria Santo Domingo
893 м • 13 мин пешком • 4 мин на авто
Детский сад
Escuela Infantil Privada Parque de Lisboa
903 м • 13 мин пешком • 4 мин на авто
Детский сад
Escuela Infantil-casa de Niños Sol y Luna
906 м • 13 мин пешком • 4 мин на авто
Больницы
Клиника
Centro de Salud Doctor Trueta
336 м • 5 мин пешком • 1 мин на авто
Клиника
Fisiozen
828 м • 12 мин пешком • 3 мин на авто
Клиника
Fraternidad Muprespa
1,7 км • 24 мин пешком • 7 мин на авто
Клиника
FREMAP Alcorcón
1,8 км • 26 мин пешком • 7 мин на авто
Парки
Парк
Парк
143 м • 2 мин пешком • 1 мин на авто
Сад
Сад
168 м • 2 мин пешком • 1 мин на авто
Парк
Parque de Buero Vallejo
283 м • 4 мин пешком • 1 мин на авто
Парк
Plaza las Escuelas
285 м • 4 мин пешком • 1 мин на авто
Парк
Plaza San Pedro Bautista
312 м • 4 мин пешком • 1 мин на авто
Парк
Calle Mayor
470 м • 7 мин пешком • 2 мин на авто
Парк
Plaza de la Hispanidad
576 м • 8 мин пешком • 2 мин на авто
Парк
Plaza Santo Domingo
606 м • 9 мин пешком • 2 мин на авто
Парк
Parque Las Comunidades
677 м • 10 мин пешком • 3 мин на авто
Парк
Plaza del Sol
685 м • 10 мин пешком • 3 мин на авто
Парк
Parque Ciudad de Mayarí
732 м • 10 мин пешком • 3 мин на авто
Парк
Parque de La Ribota
852 м • 12 мин пешком • 3 мин на авто
Гос. учреждения
Почта
Correos
644 м • 9 мин пешком • 3 мин на авто
Почта
Correos S.A.
812 м • 12 мин пешком • 3 мин на авто
Полиция
Policía Local
1,4 км • 20 мин пешком • 6 мин на авто
Полиция
Policía Nacional - Comisaría de Alcorcón.
1,5 км • 21 мин пешком • 6 мин на авто
Почта
Correo Porto Cristo
1,5 км • 21 мин пешком • 6 мин на авто
Почта
Почта
1,8 км • 26 мин пешком • 7 мин на авто
Примечание: места подбираются в радиусе ~2 км (пляж — до ~2 км). Расстояние считается по прямой и может отличаться от маршрута.
Расчёт ипотеки по объекту
Параметры
Пресеты — ориентировочные. Обновите ставки/налоги в админке под актуальные условия.
Результат
Ежемесячный платеж
—
Сумма кредита
—
Налоги (≈)
—
Наличные на сделку (≈)
—
Переплата (проценты)
—
Сумма выплат
—
Коротко
—
Отримуй нові об'єкти оперативно
Підпишись на нашу розсилку актуальних об'єктів нерухомості в Іспанії
Copyright @2026
